Departamentos en venta

Departamento 4 Ambientes con Dependencia – Contrafrente - A refaccionar .

USD 159.000 EN VENTA

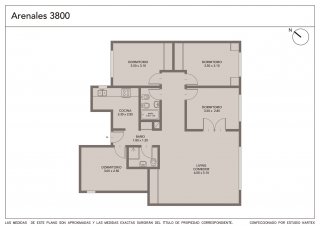
Departamento de cuatro ambientes con dependencia ubicado en primer piso contrafrente A REFACCIONAR . Al ingreso a la propiedad encontramos la dependencia con baño, luego cocina amplia separada con ventilacion natural . Living comedor con ventales. Tres dormitorios con placard, uno de ellos se puede incorporar al living y de esta forma queda un living amplio en L. Toilette con ducha y baño completo. Ideal para familias que buscan amplitud y comodidad en una ubicación privilegiada, con fácil acceso a múltiples líneas de colectivo y la estación de subte Scalabrini Ortiz (Línea D), a pasos del Jardin Botanico y Parque Las Heras. Accesible: No (Ley 5.115). Pisos: 8 Departamentos por Pisos: 3 Expensas actualizadas a Marzo 2025: $200.000 Encargado con vivienda ... - - Toda la información del aviso, incluyendo medidas, precio, impuestos, servicios, etc. son estimativos, sujetos a modificación y no vinculantes, según lo dispuesto en el art. 973, Cód. Civ. y Com. Toda la información del aviso, incluyendo medidas, precio, impuestos, servicios, etc. son estimativos, sujetos a modificación y no vinculantes, según lo dispuesto en el art. 973, Cód. Civ. y Com.Toda la información del aviso, incluyendo medidas, precio, impuestos, servicios, etc. son estimativos, sujetos a modificación y no vinculantes, según lo dispuesto en el art. 973, Cód. Civ. y Com.



Contactar.

USD 159.000 EN VENTA
Código KP446594
Categoría Departamentos
Estado Activa
Ubicación Arenales 3837
Zona Palermo
Barrio Palermo
Localidad Capital Federal, Capital Federal
Tipo de operación En venta
Apto credito
Ambientes 4
Dormitorios 3
Baños 2
Piso 1
Pisos en el edificio 9
Mts totales (mt²) 89.00
Mts cubiertos (mt²) 89
Año de construcción 1975
Expensas ars 200000.00