Oficinas en venta

OFICINA. 9 AMBIENTES. FRENTE. APTO PROFESIONAL. CONGRESO. .

USD 109.000 EN VENTA

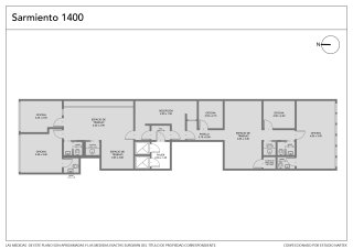
Oficina nueve ambientes, desarrollada en planta completa. Ingreso por hall y recepción central, que organiza la circulación hacia ambos sectores de la unidad. Desde allí se accede a un pasillo distribuidor que conecta de manera funcional los distintos espacios. La unidad cuenta con seis oficinas privadas/despachos y tres espacios de trabajo abiertos, permitiendo una distribución flexible para equipos de trabajo, salas de reuniones o áreas administrativas. Dispone de dos cocinas, cuatro baños y cuarto de máquinas, lo que optimiza el funcionamiento diario. Además, posee palier de acceso y circulación interna independiente que vincula las áreas comunes y privadas, brindando comodidad y privacidad. Información adicional: Calefacción central. 2 ascensores. Portero. Agua central. Ubicada en Sarmiento al 1400, en una zona estratégica del centro porteño, con excelente conectividad y cercanía a avenidas principales, medios de transporte, comercios y servicios. Ideal para estudios profesionales, empresas o consultoras que requieran amplios espacios de trabajo en una ubicación privilegiada. Toda la información del aviso, incluyendo medidas, precio, impuestos, servicios, etc. son estimativos, sujetos a modificación y no vinculantes, según lo dispuesto en el art. 973, Cód. Civ. y Com.Toda la información del aviso, incluyendo medidas, precio, impuestos, servicios, etc. son estimativos, sujetos a modificación y no vinculantes, según lo dispuesto en el art. 973, Cód. Civ. y Com.



Contactar.

USD 109.000 EN VENTA
Código KP466215
Categoría Oficinas
Estado Activa
Ubicación Sarmiento 1400
Barrio Congreso
Localidad Capital Federal, Capital Federal
Tipo de operación En venta
Ambientes 9
Dormitorios 5
Baños 4
Baños de servicio 2
Piso 3
Pisos en el edificio 6
Mts totales (mt²) 146.00
Mts cubiertos (mt²) 146
Año de construcción 1985
Expensas ars 710000.00