Departamentos en venta

VENTA. DEPTO. 4 AMB. DEPENDENCIA. BALCÓN. BAULERA. BALVANERA. .

USD 176.000 EN VENTA

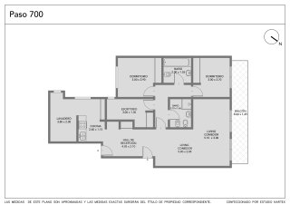
Departamento de cuatro ambientes con dependencia ubicado en quinto piso. Ingreso a amplio living-comedor con salida a balcón corrido. Cocina independiente. Pasillo de distribución que comunica con dos dormitorios y ambiente tipo estudio. Dos baños completos (uno con bañera y otro con ducha). Dependencia de servicio. Información adicional: Baulera. Pisos de parquet. Apto crédito y apto profesional. Calefacción central por losa radiante. Dos equipos de aire acondicionado frío/calor. Edificio con dos ascensores y encargado part time. La propiedad se encuentra ubicada a media cuadra del subte linea H y a una cuadra de Av. Pueyrredón y Av. Córdoba, Toda la información del aviso, incluyendo medidas, precio, impuestos, servicios, etc. son estimativos, sujetos a modificación y no vinculantes, según lo dispuesto en el art. 973, Cód. Civ. y Com.Toda la información del aviso, incluyendo medidas, precio, impuestos, servicios, etc. son estimativos, sujetos a modificación y no vinculantes, según lo dispuesto en el art. 973, Cód. Civ. y Com.


Contactar.

USD 176.000 EN VENTA
Código KP495402
Categoría Departamentos
Estado Activa
Ubicación Paso 700
Zona Balvanera
Barrio Balvanera
Localidad Capital Federal, Capital Federal
Tipo de operación En venta
Apto credito
Ambientes 4
Dormitorios 3
Baños 2
Piso 5
Pisos en el edificio 10
Mts totales (mt²) 95.60
Mts cubiertos (mt²) 84.92
Año de construcción 1973
Expensas ars 379000.00